green valley design
homeportfolioservicesabout usdocuments

Fredericktown First Presbyterian Church
Fredericktown, Ohio
Groundbreaking for this 7,800 square foot, 2- story addition took place in the spring of 2005. The goals of this feasibility study and following design services were to develop spaces for youth and young families and to make the building accessible and inviting. Both the new addition and renovations were done with attention to the existing historic sanctuary building which is listed on the national register of historic places. 
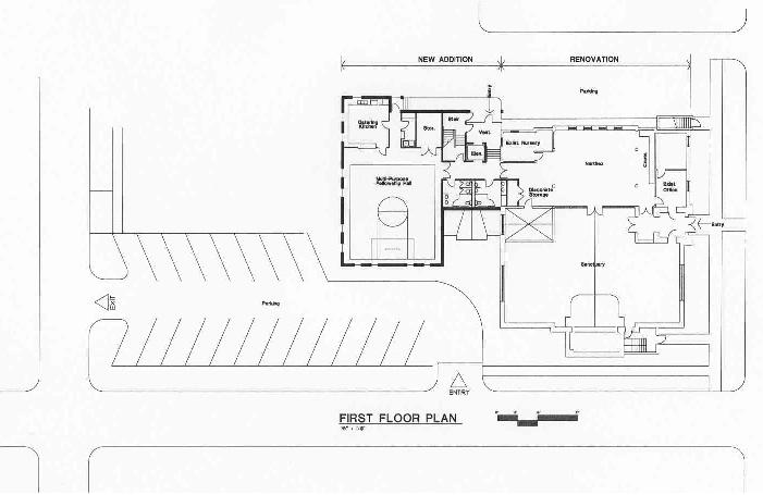
Waterford UMC Family Life Center
Waterford, Ohio
The family life center was undertaken as a design/ build project involving the church building committee, Kokosing Construction and Jeffrey Salva, Architect. The 12,000 square foot center is an addition to the existing sanctuary building and houses youth activity areas, classrooms, nursery and a multi-purpose room. Special attention was paid to the use of the multi-purpose room for both gym activities as well as large worship gatherings. This project also features a Geo-Thermal heating and cooling system for the entire building.  
commercialresidentialreligiousrendering